Photos Teviot, "The cellar"
Chania Town - Michail Kourmouli 33
In a central area of Chania Town, located within a short distance of Koum Kapi Beach and Saint Anargyri Church, Teviot, "The cellar" offers free WiFi, air conditioning and household amenities such as a fridge and coffee machine. Guests staying at this apartment have access to a fully equipped kitchenette. The property is non-smoking and is situated 600 metres from Chania Old Venetian Harbour.
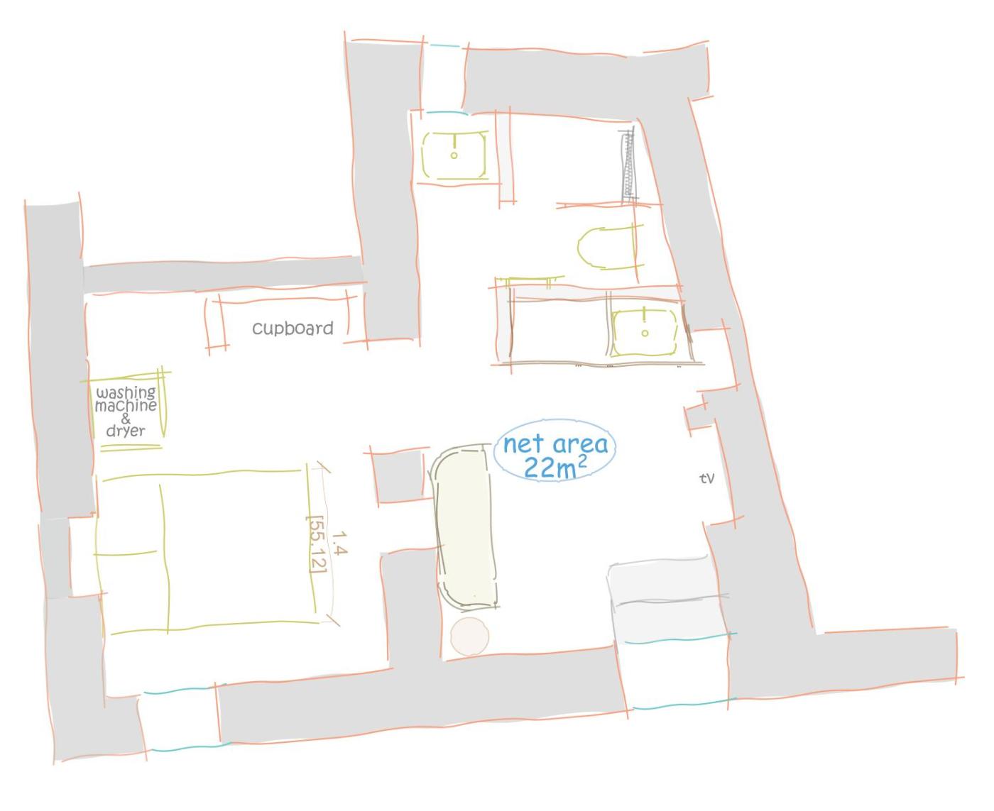
Composed of 1 bedroom and 1 bathroom, this recently renovated apartment comes with a flat-screen TV with streaming services. Towels and bed linen are provided in the apartment. For added privacy, the accommodation features a private entrance.
Popular points of interest near the apartment include Mitropoleos Square, Folklore Museum of Chania and Kucuk Hasan Mosque. Chania International Airport is 14 km away.
The hotel day starts from hour 14:00 and ends at 11:00.
This property will not accommodate hen, stag or similar parties.
Managed by a private host
One-Bedroom Apartment. Featuring a private entrance, this air-conditioned apartment comprises 1 bedroom and 1 bathroom with a hairdryer. The apartments kitchenette, which features a refrigerator and kitchenware, is available for cooking and storing food. The apartment provides a washing machine, a tea and coffee maker, tumble dryer, a sofa and a flat-screen TV with streaming services. The unit offers 1 bed.
Additional information about the offer Greece - Chania Town - Teviot, "The cellar", opinions of holidaymakers as well as available dates can be found on the website our partner.
License number: 00002857242
Book now
Offer from our partner: Booking.com BG.317994






